Rénovation PARIS 14EME ARRONDISSEMENT
Réf. 444

RÉNOVATION
PARIS 14EME ARRONDISSEMENT

  • 2 Pièces
  • 38 m2

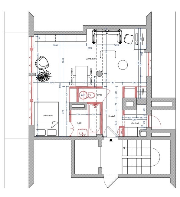
Novembre 2024 : réaménagement complet d'un deux pièces avec terrasse à but locatif.
Mission : conception, conseil, maitrise d'oeuvre.
Travaux : menuiserie, store, maçonnerie, électricité, plomberie,... tout corps d'état
Durée des travaux : 3 mois
  • Référence : 444
  • Ville : PARIS 14EME ARRONDISSEMENT
  • Transaction : Rénovation
  • Type de bien : Autre
  • Surface : 38 m2
  • Nbr de pièces : 2
Performance énergétique (en KWh/m2/an)
Dpe
Performance climatique (en Kg éq CO2/m2/an)
Ges
Montant estimé des dépenses annuelles d’énergie pour un usage standard : année de référence - de 0€ à 0€
%
%

Vos mensualités

*apport calculé sur une base de 20%

Informations non contractuelles, fournies à titre indicatif
75 - Paris
Montant En % du prix du bien
Emoluments notaire %
Copies & formalités notaire 800 %
Total notaire %
Droits de mutation 5.80%
Publicité foncière 0.10%
Debours 400 %
TVA (sur part notaire) %
Total %
Informations non contractuelles, fournies à titre indicatif
Contactez-nous
* champs obligatoires
Biens similaires
Rénovation
PARIS 14EME ARRONDISSEMENT
Novembre 2024 : réaménagement complet d'un deux pièces avec terrasse à but locatif. Mission : conception, conseil, maitrise d'oeuvre. Travaux : menuiserie, store, maçonnerie, électricité, plomberie,... tout corps d'état Durée des travaux : 3 mois
  • 2 Pièces
  • 38 m2
Réf. 444
  • 0
  • 0